실제 구조물을 해석하기 위해서는 자유물체도를 활용하여 모델화합니다.
▶ 구조물의 모델화와 자유물체도(Free body diagram)
구조역학을 처음 배울 때는 이것을 왜 하는지? 실제 구조물과 무슨 상관이 있는지 잘 이해가 되지 않습니다. 여기서는 실제 도면을 보면서 보에 작용하는 하중을 어떻게 계산하는지 살펴보겠습니다.
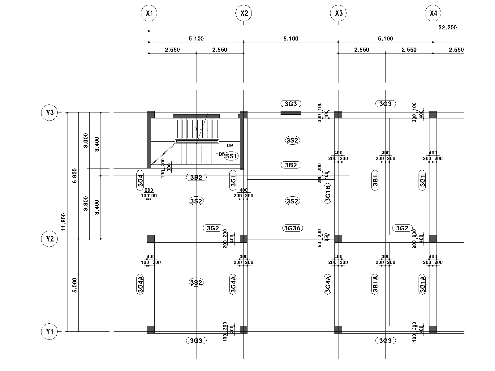
다음과 같은 구조도면을 먼저 보겠습니다. 비교적 크지 않는 규모의 근린생활시설의 3층 구조도면입니다.

우선 3층 슬래브에 작용하는 하중을 계산해보겠습니다.
먼저 고정하중을 계산하는데 고정하중에는 구조체의 자중과 영구적으로 부착되는 마감재의 하중이 포함됩니다. 그래서 고정하중은 사용재료의 단위체적당중량 또는 그 표면적의 단위면적당 중량에 마감재료의 두께를 곱해서 산출합니다.
우선 구조부재의 크기를 가정합니다.
슬래브의 두께 = 150mm
보의 크기 = 400×600mm
철근콘크리트의 단위체적당 중량은 2.4tf/m³ 이므로 슬래브의 단위면적당 자중을 다음과 같이 계산할 수 있습니다.

SI단위계로 계산하면 콘크리트 슬래브 24kN/m³ × 0.15m = 3.6kN/m²
그 외 마감재는 경험적인 값을 활용하여 계산합니다. 간막이벽은 단위면적당 100kg 정도가 되는데 경험적으로 1.0kN/m² 으로 산정합니다.
천장마감재도 경험적으로 계산할 수 있는데 아파트라면 더 줄일 수 있고, 복잡한 설비라면 더 키워서 산정하기도 합니다.

일반사무실의 활하중은 2.4kN/m²을 적용합니다.
이제 고정하중과 활하중을 합해야 하는데 단순히 더해서는 안 되고 구조설계기준에 따라 하중계수를 곱해서 계산합니다. 중력하중만을 더할 때는 적용하는 하중계수(Load factor)는 고정하중이 1.2, 활하중은 1.6이 됩니다.

고정하중과 활하중의 하중조합에 의한 계수하중인 11.32 kN/m² 는 단위면적당 힘인 등분포하중으로, 슬래브에 작용하는 것으로 구조해석을 진행합니다.
자 그럼 위 구조도면에서 작은보인 B1에는 어떻게 하중이 전달될까요?

일방향슬래브와 이방향슬래브는 하중 분담영역이 다릅니다. 3B1은 일방향 슬래브이기 때문에 단변방향으로 대부분의 하중이 전달되다고 해석합니다.
▶ 슬래브의 종류
작용하는 하중은 계수하중에 면적을 곱한 값과 작은보 자중을 계산한 것이며, 자중은 고정하중이기 때문에 계수하중인 1.2를 곱해야 합니다.

따라서 3B1을 해석모델로 나타내면 다음과 같이 됩니다.

위 그림에서 큰보와 연결된 단부 부분은 큰보가 작은보의 회전을 구속하지 못하기 때문에 회전단으로 봅니다. 보통은 연속과 불연속으로 보고 계산하는 경우가 많습니다.
이 부정정구조물의 휨모멘트를 계산하면 최대 휨모멘트를 계산할 수 있고, 이 최대 휨모멘트의 크기에 따라 철근량을 결정하게 됩니다.
▶ 보 경간과 춤
| 단면정수 - 단면1차모멘트와 도심 (1) | 2024.01.28 |
|---|---|
| 트러스 - 건축기사 기출문제 (1) | 2024.01.24 |
| 정정구조물의 응력 개념(단면력) (0) | 2024.01.21 |
| 정정구조물의 반력 계산 예제 (0) | 2024.01.21 |
| 정정구조물의 반력 계산 (0) | 2024.01.21 |